Two Storey Sloping roof House with Plan-2125 sq.ft
If you ain’t a big fan of the flat-roof design which seems to be the highlight of most homes, then here is an epic alternative.
The architect has designed this house with a steep slope roof that covers almost one portion of the house. As if to make it up to the design, three windows have been included to be opened directly to the view that’ll otherwise be covered by the roof.
Granite pillars stand proudly in front. A small portion of this design could be seen on the first floor as well. Together, they make both the storeys beautiful and they cover an area of 2121 square feet with 4 bedrooms and attached bathrooms.
House Elevation Details :
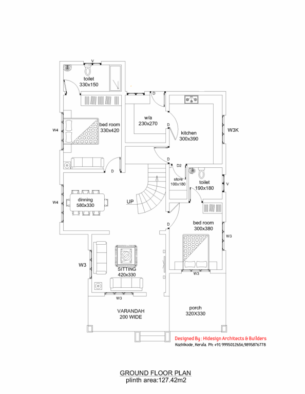
Ground floor : 1371 sq. ft.
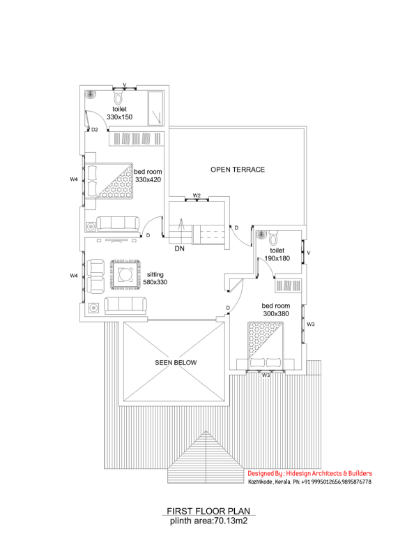
First floor : 754 sq. ft.
Total Area : 2125 sq. ft.
Bedroom : 4
Bathroom : 4
Everything from spacious bedrooms to luxury attached bathrooms to a kitchen and sitting – the ground floor has it all. The best thing, however, is how everything is put together.
You get to pass the porch, and a generous veranda before entering the house. Stepping through the main door will lead you to the sitting room that has ample room to host many guests together.
It’ll then lead you to the dining room, along with a flight of stairs joining the first floor with the ground. This dining room is also directly linked with the pantry kitchen, which makes serving food an easy task.
To its left is a spacious work area meant to simplify the work in your kitchen. Two of the 4 luxury bedrooms promised to you is found on this floor. They have attached bathrooms as well – leaving you possibly nothing more to ask for in a room.
The first floor, on the other hand, is where you’ll find peace. The only highlights are the two major bedrooms occupying most of the portion of this floor. They also have an impressive luxury bathroom each.
However, when you climb the stairs, you’ll be greeted into a comfortable living room. Additionally, there’s a massive terrace that’ll promise you a stunning view on your surroundings.
Find yourself interested on this house? Then don’t hesitate contacting the architect behind it for more information. Contact details are provided below.
Designer : Shafeeque K.P
Hidesign Architects & Builders
Dream mall east road, Koyilandy
Mob:9995012656,9895876778
Email:hidesign2008@gmail.com
